+351 961 266 322 / 964148343   |  
Rua do Luar
8500-510 Portimão
Zoek Eigendom:

Wisselkoersen

EUR  >  0.873 GBP
GBP  >  1.145 EUR
EUR  >  1.166 USD
USD  >  0.858 EUR

Disco Quarteira Loulé

€ 13.000.000
  • REFAV-PBI-1348
  • Lokaal-
  • Gebied5040 m² | 31472 m²
  • StatusGebruikt
  • Energie-efficiëntie
  • County: Faro
  • Stad: Loulé
  • Gemeente: Quarteira
Een rijk van plezier in de Algarve

Stel je een ruimte voor die pulseert met de energie van de nacht, een plek waar muziek, dans en adrenaline samensmelten tot een unieke ervaring. Met zijn 5.040m² aan puur entertainment is deze nachtclub al een icoon in de Algarve, maar wees erop voorbereid om naar een nieuw niveau van ervaring te worden vervoerd, want het potentieel van deze ruimte is onbeperkt.

Een oase van luxe en plezier

Voorstel je een meterhoge dansvloer, met een geavanceerd geluids- en lichtsysteem waardoor je elke beat in je botten voelt. Stel je exclusieve lounges voor waar je kunt ontspannen en genieten van het uitzicht terwijl je een verfijnde cocktail drinkt.

Een stralende toekomst

Maar de magie stopt daar niet. Met de mogelijkheid om uit te breiden tot 7.500m², zijn de mogelijkheden eindeloos. Stel je een compleet entertainmentcomplex voor, met thematische restaurants, bars met live muziek, designerwinkels en ruimtes voor onvergetelijke evenementen. Een bestemming die zowel toeristen als lokale bevolking zal aantrekken, waardoor de regio wordt omgetoverd tot een internationaal gerenommeerd entertainmentcentrum.

De ideale locatie

De nabijheid van paradijselijke stranden, toeristische attracties en lokale voorzieningen garandeert een constante stroom van bezoekers. De vraag naar vrijetijds- en entertainmentervaringen is hoog en deze ruimte is klaar om aan die behoefte te voldoen.

Een strategische investering

Dit pand vertegenwoordigt veel meer dan een eenvoudige nachtclub. Het is een unieke kans om te investeren in een welvarend en voortdurend groeiend bedrijf. Met strategische planning en een visie op de toekomst, kan deze ruimte een van de meest begeerde bestemmingen in de Algarve worden.

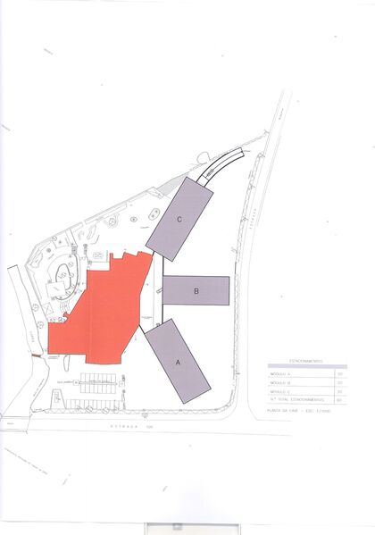
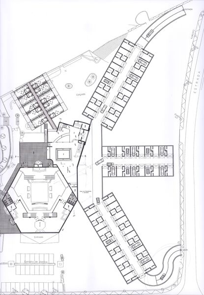
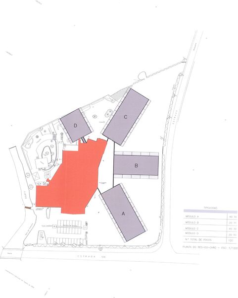
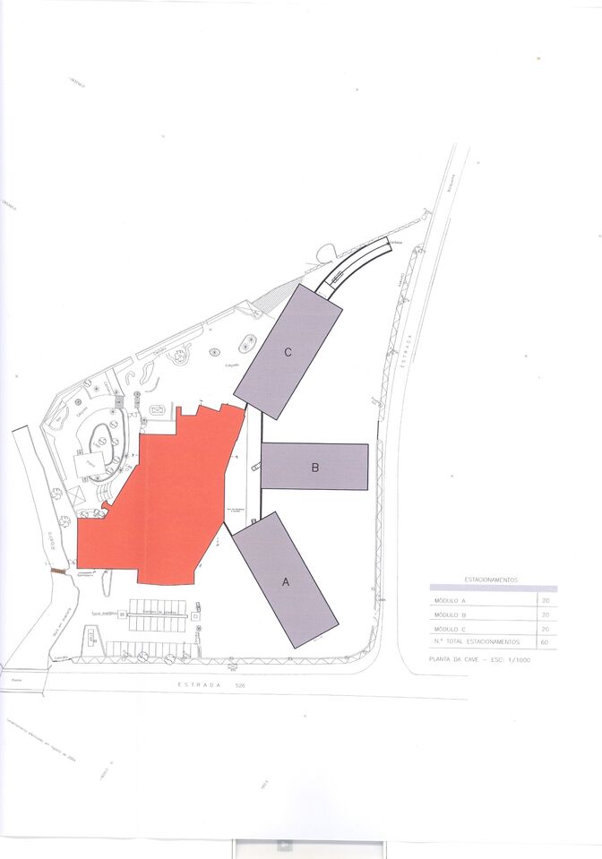
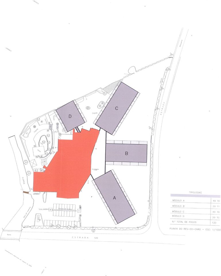
Haalbaarheid van het project voor een luxe verpleeghuis, met de bouw van 120 appartementen en ook de aanpassing van de bestaande ruimte om gemeenschappelijke ruimtes aan te passen met diensten zoals restaurants, recreatieruimtes, medische hulp en entertainmentruimte en bestaande exotische tuin.

Samengevat biedt deze woning:

De grootste nachtclub in de Algarve: Een reeds gevestigde ruimte met een groot groeipotentieel.
Strategische locatie: Dicht bij alles wat u nodig heeft om het succes van uw bedrijf te garanderen.
Flexibiliteit: De mogelijkheid om de ruimte aan te passen aan uw behoeften en een uniek concept te creëren.
Uitbreidingspotentieel: De kans om een entertainmentimperium op te bouwen.
Als u op zoek bent naar een investering die passie, zaken en een veelbelovende toekomst combineert, is dit uw kans.

Wilt u meer weten over dit ongelooflijke project? Neem contact met ons op!
  • thumb-211446709_IDe70f8101-0000-0500-0000-0000139e434a.jpg
  • thumb-211446709_IDe70f8101-0000-0500-0000-0000139e434b.jpg
  • thumb-211446709_IDe70f8101-0000-0500-0000-0000139e434c.jpg
  • thumb-211446709_IDe70f8101-0000-0500-0000-0000139e434d.jpg
  • thumb-211446709_IDe70f8101-0000-0500-0000-0000139e434e.jpg
  • thumb-211446709_IDe70f8101-0000-0500-0000-0000139e434f.jpg
  • thumb-211446709_IDe70f8101-0000-0500-0000-0000139e4350.jpg
  • thumb-211446709_IDe70f8101-0000-0500-0000-0000139e4351.jpg
  • thumb-211446709_IDe70f8101-0000-0500-0000-0000139e4352.jpg
  • thumb-211446709_IDe70f8101-0000-0500-0000-0000139e4353.jpg
  • thumb-211446709_IDe70f8101-0000-0500-0000-0000139e4354.jpg
  • thumb-211446709_IDe70f8101-0000-0500-0000-0000139e4355.jpg
  • thumb-211446709_IDe70f8101-0000-0500-0000-0000139e4356.jpg